Desde 2006, o local para procurar casa em Portugal

«Voltar

Venda: Apartamento T3

Apartamento T3 - Alto do Seixalinho, Barreiro, Setúbal - Imagem grande

Detalhes do imóvel

  • Distrito
    Setúbal
  • Concelho
    Barreiro
  • Localidade
    Alto do Seixalinho
  • Area
    109 m²
  • Preço
    342.000 €
  • Certificado Energético
    ND
  • Código interno
    DSBRRF114

Descrição

Bem-vindo à DS BARREIRO FIDALGUINHOS | IMÓVEIS QUE MARCAM®, onde transformamos sonhos em decisões seguras.

Com mais de 16 anos de experiência nas áreas de Mediação Imobiliária, Intermediação de Crédito e Mediação de Seguros, garantimos um acompanhamento próximo, transparente e orientado para resultados. Atuamos com rigor, ética e dedicação em todas as fases do processo.

Apresentação do Imóvel
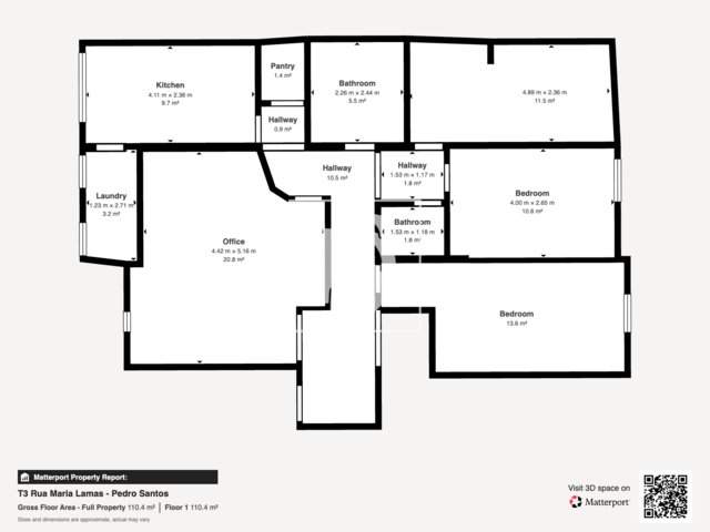
Apresentamos este apartamento T3, localizado no Alto do Seixalinho, Barreiro, uma das zonas mais procuradas pela sua centralidade e proximidade a tudo o que realmente importa.

Inserido num edifício de 7 pisos, este imóvel dispõe de uma área generosa de cerca de 109 m², oferecendo espaços amplos, bem distribuídos e com excelente potencial de valorização.

A sua localização estratégica permite acesso imediato a escolas, comércio, transportes, hospital e principais vias rápidas, tornando-o ideal para famílias ou investimento.

Características Internas

Sala de Estar e Jantar
Sala ampla, com excelente dimensão, permitindo criar diferentes ambientes de forma confortável e funcional.

Cozinha
Cozinha espaçosa, com zona de refeições e ligação a marquise, proporcionando maior praticidade no dia a dia.

Quartos (3)
Três quartos com boas áreas, todos com luz natural, ideais para família, escritório ou espaço multifuncional.

Casas de Banho (2)
Duas instalações sanitárias, garantindo conforto e funcionalidade para toda a família.

Hall e Corredor
Zona de circulação ampla, com excelente organização dos espaços.

Marquise / Lavandaria
Espaço adicional fechado, ideal para lavandaria e arrumação.

Arrecadação
Espaço adicional ao nível do r/c, ideal para arrumação.

Outras Características

Boa exposição solar (orientação Norte/Sul)
Imóvel inserido em prédio de condominio organizado (33 mensais)
Tipologia funcional com boa separação entre zona social e privada
Potencial de modernização e valorização

Localização Alto do Seixalinho, Barreiro

Junto a escolas e serviços
Próximo do hospital
Comércio local e supermercados
Transportes públicos
Acesso rápido às principais vias e ao centro do Barreiro

Uma localização prática, central e com elevada procura.

Conclusão Comercial
Este T3 reúne três fatores essenciais no mercado atual:
localização, área e potencial.

Uma oportunidade sólida para quem procura espaço para viver com conforto ou investir com segurança numa zona consolidada.

Informação Técnica

Tipologia: T3
Área Bruta Privativa: 109,92 m²
Área útil aproximada: 99 m²
Ano de construção: 1996
Certificado Energético: Classe D

Piso: 1º Andar
Prédio: 7 pisos
Valor de Venda: 342.000

Agende já a sua visita.
Este pode ser o imóvel que vai marcar a sua próxima etapa.

IMÓVEIS QUE MARCAM® | DS BARREIRO FIDALGUINHOS
Lic. AMI 17848 | ICV 7232 | Nelson Alves Favas, Unip. Lda

Imprimir a informação deste imóvel Imprimir a informação deste imóvel

O email ou o telefone têm de estar preenchidos.

Autorizo que os dados inseridos neste formulário apenas sejam utilizados para o fim a que o mesmo se destina.

Loading image