Desde 2006, o local para procurar casa em Portugal

«Voltar

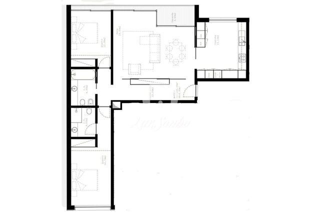
Venda: Apartamento T2

Apartamento T2 - Espinho, Espinho, Aveiro - Imagem grande

Detalhes do imóvel

  • Distrito
    Aveiro
  • Concelho
    Espinho
  • Localidade
    Espinho
  • Area
    111 m²
  • Área do terreno
    111 m²
  • Preço
    Sob Consulta
  • Certificado Energético
    A
  • Código interno
    259-A-00130

Descrição

Imperdível T2 novo para venda no Centro de Espinho.

Prédio construído com os mais elevados padrões de qualidade.

Equipado com materiais de excelente qualidade e bom gosto.

Agende já a sua visita.

Aspetos Gerais
Estrutura: Estrutura em betão armado com fundações diretas, estrutura
reticulada de pilares e vigas, com lajes maciças, calculada
segundo as normas regulamentares em vigor, incluindo a
segurança ao vento e sismos.
Paredes Exteriores: As paredes exteriores são constituídas por bloco térmico,
com isolamento térmico/acústico. As paredes interiores
entre frações em bloco técnico acústico. A divisão de
compartimentação do interior das habitações em dupla
placagem de pladur com isolamento acústico.
Pavimentos: Enchimento de pisos interiores com betão leve, para
envolvimento de todas as redes técnicas (redes de águas,
esgotos, eletricidade e telefones). Aplicação de tela de
polietileno para isolamento acústico.
Cobertura: Sistema de cobertura inclinada, constituída por pendente
natural, impermeabilização com dupla tela asfáltica, isolamento
térmico com Poliestireno Extrudido tipo Roofmate,
tela pitonada com acabamento final em Zinco Antracite.
Outros: Aparcamento privativo nas caves, com acessos de entrada e
saída controlado com portão secionado automático c/ comando
à distância;
ECOPONTO em compartimento próprio na zona de acesso às
garagens para recolha seletiva de resíduos sólidos
indiferenciados;
Conforto e Segurança
Elevadores: Elevadores elétrico c/ capacidade p/ 8 pessoas,
c/funcionamento silencioso, suave e energeticamente
eficiente - Classe A, c/ portas automáticas e iluminação
por LEDs.
Climatização: Climatização feita através de sistema de ar condicionado do
tipo Multi-Split com instalação oculta da DAIKIN.
Sistema Solar e AQS: Sistema de bomba de calor com deposito para produção de AQS
c/ eficiência energética e gestão horária do aquecimento c/
depósito da DAIKIN.
Caixilharias: Caixilharia em alumínio de série Minimalista 2F da EXTRUSAL,
sistema B150 composto por vidro duplo 8mmPlanit XN temperado
+ 27mm de ARGON Preto + 8mm de vidro Coolite ST 450
Temperado.
Blackouts: Blackouts com sanca incluindo alimentação. Inclui
fornecimento de blackouts nos quartos.
Isolamento entre fogos: Gesso cartonado 2WR + M48 + lã de rocha projetada 300/2 +
freebloco 10 + lã de rocha projetada 300/2 + M48 + 2WR
Ventilação dos WCs: Ventilação mecânica nas instalações sanitárias sem janelas.
Instalação: Instalação de redes TV cabo, Telefones, informática e vídeo
porteiro a cores.
Domótica: Domótica para controlo de todas as funcionalidades da
habitação.
Iluminação: Iluminação c/ Sancas para possibilitar a aplicação de luz
indireta e ponto de luz nos tetos.
Aparelhagem da HAGEN ou equivalente, inclui tomadas e
interruptores.
Segurança: Porta de segurança na entrada de cada Habitação.
Instalação Contra
Incêndios:
Portas corta fogo nos acessos verticais dos pisos para a
caixa de escadas e nas caves.
Sistema de Deteção de Incêndios e de Monóxido de carbono
nas garagens.
Sistemas de combate a incêndios das zonas comuns.
Sistema de iluminação automático acionada por sensores de
movimento e iluminação de emergência nas zonas comuns.

Zonas Comuns
Hall Dos Elevadores:
-Pavimento Placa cerâmica da MARGRES, KERLITE de 120x120 CALACATA.
-Paredes Placa cerâmica da MARGRES, KERLITE de 120x300 CALACATA.
-Teto Painéis de HPL com textura a definir
Entrada:
-Pavimento Interior Cerâmico ou madeira maciça a definir
-Pavimento Exterior Pavimento do tipo calçada a Portuguesa Vidrado
-Paredes Placa cerâmica ou painéis de HPL com textura a definir
-Teto Painéis de HPL com textura a definir
-Porta de entrada Porta com sistema de abertura pivotante com sistema
minimalista com recetáculos em aço.
Garagem | Arrumo:
-Pavimento Betão afagado a talocha mecânica com endurecedor de
superfície.
-Paredes Betão á vista.
-Teto Betão á vista.
-Arrumos Composto por estrutura metálica com acabamento a chapa
perfurada e pintura a definir. Fechadura e sistema de
iluminação e tomada autónomos.
Escadas Interiores:
-Pavimento Betão afagado a talocha mecânica com endurecedor de
superfície.
-Paredes Betão á vista.
-Resguardos Em barra e tubo de aço.
-Teto Betão á vista.
-Portas As portas interiores de correr e batente, assim como as
ombreiras e remates serão executadas em MDF lacado.
Puxadores tipo JNF e ferragens em Aço Inox.
-Apainelados Painéis em MDF lacados a cor a definir. Inclui remates com
vãos de abertura.
Cozinha
-Mobiliário Mobiliário será em Termolaminado branco com sistema de
abertura com puxador minimalista.
-Tampo e roda-tampo Os tampos serão em material composto com resinas, na cor
branca, tipo SILESTONE com espessura de 12mm. A bacia da
banca será executada no mesmo material assim como o rodatampo
enfrente.
-Equipamentos Placa de Indução da kuppersbusch ou equivalente.
Forno Elétrico encastrado da kuppersbusch ou equivalente.
Micro-ondas encastrado da kuppersbusch ou equivalente.
Máquina de lavar louça da kuppersbusch ou equivalente.
Exaustor encastrado da kuppersbusch ou equivalente.
Combinado encastrado da kuppersbusch ou equivalente.
Instalação para Máquina de lavar roupa encastrada.
-Acessórios Misturadora do tipo Bruma, modelo GINGER ou equivalente.
Instalações Sanitárias
-Mobiliário Mobiliário será em MDF hidrófugo lacados a branco com
sistema de abertura em corte a meia esquadria.
-Louças Sanitárias Sanitas suspensas do tipo SANINDUSA, modelo SUNLIFE.
Bidé suspenso do tipo SANINDUSA, modelo SUNLIFE.
Lavatório de pousa do tipo SANINDUSA, modelo SUNLIFE 60x40.
Bases de duche do tipo SANINDUSA, modelo MARINA.
Banheira do tipo SANINDUSA, modelo VÉRTICE.
Edifício
Exterior:
-Fachada Placas da MARGRES, KERLITE com a dimensão de 100x300 com
aspeto ocre/branco com contrate com zonas em placagem em
fachada ventilada. Placas da MARGRES, KERLITE com a dimensão
de 100x300 com aspeto basalto.
Zinco antracite aplicado com junta agrafada tipo camarinha,
junta vertical ou equivalente.
-Guardas Estrutura em aço com vidro laminado e floreiras em aço com
pintura antracite
-Terraços Deck de madeira de Ipê ou equivalente.
-Teto | Varandas Betão á vista.
Interior Habitação:
-Pavimento Interior Madeira Tipo carvalho Rustico Multicamadas G04 escovado,
Classic PLY ESP 190*14/3mm, colado.
-Pavimento Interior WCs Grés porcelânico retificado na dimensão 120x120cm de textura
e tonalidade a definir, tipo Margres Kerlite.
-Paredes Interiores Placa dupla de gesso cartonado hidrófugo da Knauf,
prevendo 2WR+M70+PN100/4 + 2WR. Inclui remates periféricos
e com o teto com alheta de 5mm com pintura lavável de cor
branca.
-Paredes Interiores WCs Grés porcelânico retificado na dimensão 120x120cm de textura
e tonalidade a definir, tipo Margres Kerlite.
-Teto Gesso cartonado com 13mm espessura. Incluindo sancas para
iluminação, remate periférico com alheta de 5mm com pintura
Anti fungos laváveis de cor branca.
Carpintarias:
-Rodapé Rodapé embutido com 6cm de altura em MDF hidrófugo lacado a
cor branca com alheta de 3mm.
-Mobiliário Mobiliário em geral serão em MDF/aglomerado/contraplacado
lacado a branco com sistema de abertura a corte a meia
esquadria ou puxadores redondos do tipo JNF.
-Mobiliário WCs Mobiliário dos sanitários serão em MDF hidrófugo lacados a
branco com -Acessórios Misturador lavatório do tipo SANINDUSA, modelo NEW ICON.
Misturador bidé do tipo SANINDUSA, modelo NEW ICON.
Misturadora banheira do tipo SANINDUSA, modelo NEW ICON.
KIT de Chuveiro do tipo SANINDUSA, modelo NEW ICON.



LardeSonho Rede Imobiliária Nacional, ao optar pelos nossos serviços está a contribuir para o seu futuro e de Portugal.

Para além disso, a nossa rede LardeSonho tem acesso privilegiado ao seu imóvel e, por não se tratar apenas de uma imobiliária, mas de uma rede imobiliária com centenas de vendedores a trabalhar para vender o seu imóvel, este poderá ser transacionado mais rapidamente.

Se pensa vender o seu imóvel entre em contacto connosco, teremos todo o prazer em poder ajudar em todo o processo complexo associado à venda do imóvel.

Caso seja comprador, também estamos disponíveis para o ajudar na seleção, compra e em todo o processo associado à escritura.

No caso de pretender uma nova carreira profissional e ser independente financeiramente, assim como, gerir o seu próprio horário de trabalho, convidamo-lo a entrar em contacto connosco pois está à distância de um contato para mudar sua vida!

Alertamos que a informação disponibilizada deste imóvel carece de confirmação e não poderá ser considerada vinculativa, pois poderá haver algum erro e ou lapso.

Imprimir a informação deste imóvel Imprimir a informação deste imóvel

O email ou o telefone têm de estar preenchidos.

Autorizo que os dados inseridos neste formulário apenas sejam utilizados para o fim a que o mesmo se destina.

Loading image