Desde 2006, o local para procurar casa em Portugal

«Voltar

Venda: Apartamento T3

Apartamento T3 - Lordelo, Paredes, Porto - Imagem grande

Detalhes do imóvel

  • Distrito
    Porto
  • Concelho
    Paredes
  • Localidade
    Lordelo
  • Area
    3 m²
  • Preço
    346.000 €
  • Certificado Energético
  • Código interno
    CR3934

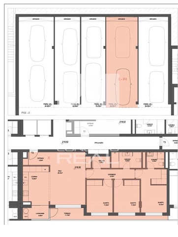
Descrição

Estado: Em construção| Ano construção: 2027|Tipologia: T3| Casas de Banho: 2| Varanda: Sim|Garagem: box + arrumos| Elevador: Sim| Ar condicionado: Sim|Edifícios ? O Seu Novo Lar em LordeloO Park 3 é um novo empreendimento residencial que eleva o padrão de qualidade e conforto em Lordelo. Com uma arquitetura moderna e linhas elegantes, apresenta apartamentos T3 amplos, entre 150 m² e 200 m², concebidos para oferecer uma experiência de habitação superior. Todos os apartamentos incluem garagem box fechada, arrumos e varandas generosas em todos os quartos e salas, privilegiando a luminosidade natural e o bem-estar.O interior reflete a combinação perfeita entre a nobreza dos materiais aplicados e a funcionalidade. As cozinhas open space surgem totalmente equipadas com forno, placa, exaustor, máquina de lavar loiça e micro-ondas, criando um ambiente prático e harmonioso. Os apartamentos oferecem ainda isolamento térmico e acústico de elevada eficiência, estores elétricos, sistema completo de ar condicionado e casas de banho com piso radiante, garantindo conforto em todas as estações do ano.Situado numa zona central e privilegiada, o Park 3 representa uma oportunidade única para quem procura espaço, modernidade e qualidade num só lugar. O Park 3 encontra-se em fase de pedreiro tendo a sua conclusão prevista para Agosto 2027, tornando este o momento ideal para assegurar o seu futuro lar com condições especiais nesta fase.Localização Estratégica:Aeroporto ? 20 minutosParedes centro ? 15 minutosPaços de Ferreira centro ? 10 minutosPorto centro ? 30 minutosCada imóvel é único. Escolha o seu com a nossa ajuda!!!Somos Intermediários de crédito vinculado, registados no banco de Portugal com o nº 2222.

Imprimir a informação deste imóvel Imprimir a informação deste imóvel

O email ou o telefone têm de estar preenchidos.

Autorizo que os dados inseridos neste formulário apenas sejam utilizados para o fim a que o mesmo se destina.

Loading image