Desde 2006, o local para procurar casa em Portugal

«Voltar

Venda: Moradia T3

Moradia T3 - Fânzeres, Gondomar, Porto - Imagem grande

Detalhes do imóvel

  • Distrito
    Porto
  • Concelho
    Gondomar
  • Localidade
    Fânzeres
  • Area
    260 m²
  • Área do terreno
    260 m²
  • Preço
    190.000 €
  • Certificado Energético
    ND
  • Código interno
    258-M-00602

Descrição

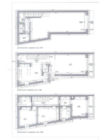
Moradia T3 em fase de construção Fânzeres

Oportunidade de adquirir uma moradia T3 EM FASE DE PEDREIRO, inserida num lote de 382 m², localizada em zona tranquila e residencial de Fânzeres.

Com uma área de implantação de 86 m² por piso, esta moradia foi pensada para oferecer conforto, funcionalidade e espaço exterior.

Dispõe de:

Garagem ampla para 2 viaturas, com acesso direto ao interior da habitação

Três quartos, incluindo uma suíte com closet, todos eles com varanda

Sala com acesso a varanda

Cozinha de 22m2

Logradouro generoso, ideal para momentos em família, lazer ou jardim

Excelente exposição solar e bons acessos, próxima de comércio, serviços e escolas.

Se procura uma casa para viver com qualidade e personalizar ao seu gosto, esta é a oportunidade ideal.

NOTA: O valor deste imóvel é no estado em que se encontra (estrutura finalizada referente à arte de pedreiro).

Agende visita:
+351 221 129 553 (chamada para rede fixa nacional)

Imprimir a informação deste imóvel Imprimir a informação deste imóvel

O email ou o telefone têm de estar preenchidos.

Autorizo que os dados inseridos neste formulário apenas sejam utilizados para o fim a que o mesmo se destina.

Loading image