Desde 2006, o local para procurar casa em Portugal

«Voltar

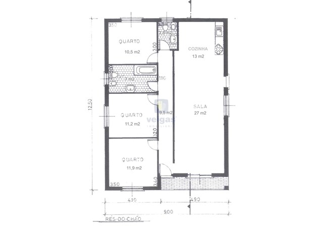
Venda: Moradia T3

Moradia T3 - Vila Cã, Pombal, Leiria - Imagem grande

Detalhes do imóvel

  • Distrito
    Leiria
  • Concelho
    Pombal
  • Localidade
    Vila Cã
  • Area
    93 m²
  • Área do terreno
    629 m²
  • Preço
    185.000 €
  • Certificado Energético
    ND
  • Código interno
    LIZ-216638

Descrição

Exclusivo! Moradia térrea isolada T3 em Vila Cã, Pombal, com sótão e terreno com 300 m2.

A moradia possui uma área bruta de construção de 220m2, dispondo no piso térreo de 3 quartos, 2 casas de banho, sala com lareira e cozinha em open space com 40 m2, e sótão com 67,5 m2.

A moradia foi parcialmente remodelada, não concluída, sendo entregue nas condições atuais. Possui caixilharia em alumínio com vidro duplo, cozinha com forno, placa e termoacumulador.

Possui terreno com 629 m2, totalmente em solo urbano, onde poderá fazer um jardim, horta, estacionamento ou piscina.

Localizado em Vila Cã, uma localidade tranquila a apenas 8 km de Pombal, onde tem disponível todo o tipo de serviços.

A moradia não possui Licença de Habitação, podendo ser feita escritura ao abrigo do Decreto-Lei n.º 10/2024, pronto pagamento, sem recurso a financiamento bancário.

Imprimir a informação deste imóvel Imprimir a informação deste imóvel

O email ou o telefone têm de estar preenchidos.

Autorizo que os dados inseridos neste formulário apenas sejam utilizados para o fim a que o mesmo se destina.

Loading image