Desde 2006, o local para procurar casa em Portugal

«Voltar

Venda: Moradia T3

Moradia T3 - Santa Maria da Feira, Santa Maria da Feira, Aveiro - Imagem grande

Detalhes do imóvel

  • Distrito
    Aveiro
  • Concelho
    Santa Maria da Feira
  • Localidade
    Santa Maria da Feira
  • Area
    182 m²
  • Área do terreno
    348 m²
  • Preço
    410.000 €
  • Certificado Energético
    A+
  • Código interno
    OAZ4375_2

Descrição

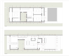
Inserida no empreendimento Quintas do Frade, esta moradia T3+1 geminada foi pensada ao detalhe para proporcionar conforto, funcionalidade e bem-estar a toda a família, numa zona residencial tranquila de Santa Maria da Feira.

Implantada num lote de 348 m², a moradia apresenta uma área bruta de 273 m² e uma área útil de 182 m², oferecendo espaços amplos, bem distribuídos e com excelente luminosidade natural.

A zona social destaca-se pela ligação harmoniosa entre sala e cozinha, criando um ambiente moderno e acolhedor, ideal para o dia a dia em família e momentos de convívio. A cozinha será equipada e os materiais foram criteriosamente selecionados, conforme mapa de acabamentos, privilegiando qualidade, durabilidade e conforto.

Na zona privada, os quartos garantem privacidade e conforto, sendo o +1 um espaço versátil que pode ser utilizado como escritório, sala de estudos ou quarto adicional, adaptando-se facilmente às necessidades da família.

Os acabamentos incluem:

- Pavimentos flutuantes e cerâmicos de elevada qualidade
- Cozinha equipada
- Instalações sanitárias modernas com loiças suspensas
- Caixilharia com bom desempenho térmico e acústico
- Soluções pensadas para eficiência e conforto térmico

Características principais:

- Pré-instalação de aspiração central
- Pré-instalação do sistema de rega
- Vídeo Porteiro
- Pré-instalação de ar condicionado
- Bomba de calor AQS
- Pré-instação de painel fotovoltaico

O espaço exterior permite usufruir de um ambiente privado, ideal para lazer, jardim ou zona de convívio ao ar livre.

Previsão de conclusão da obra: 1.º trimestre de 2027

Esta moradia representa a escolha ideal para quem procura uma casa moderna, funcional e preparada para acompanhar todas as fases da vida familiar.

Juntamente com a Ezata Credit, reforçamos que somos intermediários de Crédito à Habitação autorizados pelo Banco de Portugal e, juntamente com a Ezata Seguros, complementamos o processo de aquisição com as melhores propostas para o seu seguro de vida e seguro multirriscos.
Desta forma, para sua maior comodidade, podemos ajudá-lo ao longo de todo o processo, desde o seu primeiro contacto, até se sentir Em Casa.

Ezata Credit e Ezata Seguros são marcas pertencentes à Ezata Grupo.

Imprimir a informação deste imóvel Imprimir a informação deste imóvel

O email ou o telefone têm de estar preenchidos.

Autorizo que os dados inseridos neste formulário apenas sejam utilizados para o fim a que o mesmo se destina.

Loading image