Desde 2006, o local para procurar casa em Portugal

«Voltar

Venda: Prédio

Prédio - Marvila, Santarém, Santarém - Imagem grande

Detalhes do imóvel

  • Distrito
    Santarém
  • Concelho
    Santarém
  • Localidade
    Marvila
  • Area
    923 m²
  • Preço
    600.000 €
  • Certificado Energético
    B-
  • Código interno
    1900

Descrição

Prédio para Investimento no Centro de Santarém – Elevado Potencial de Rentabilidade

Excelente oportunidade de investimento no coração da cidade de Santarém.
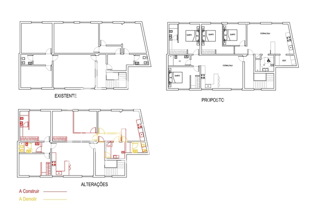
Prédio em propriedade total, composto por 2 pisos, em ótimo estado de conservação, atualmente afeto a serviços e escritórios, com forte potencial de reconversão habitacional.
Existe a possibilidade de transformar o imóvel em 3 apartamentos T2 com lugar de garagem no rés do chão, ou, alternativamente, em 2 apartamentos T2 por piso, maximizando a rentabilidade do investimento.
O edifício distribui-se da seguinte forma:

  • Rés do chão: ampla loja com excelente área e potencial para conversão, atualmente arrendada, garantindo rendimento mensal.
  • 1.º andar: espaço destinado a serviços/escritórios, igualmente arrendado, proporcionando retorno financeiro imediato.
Localização premium, no centro de Santarém, junto a:
  • Tribunal
  • Serviços públicos
  • Superfícies comerciais
  • Restaurantes
  • Mercado Municipal
  • Escolas
  • Transportes públicos
  • Espaços verdes
A sua centralidade e proximidade a todas as comodidades tornam este imóvel especialmente atrativo tanto para o mercado de arrendamento como para venda futura por frações.
Ideal para investidores que procuram:
  • Rentabilidade imediata (imóvel atualmente arrendado)
  • Potencial de valorização
  • Projeto de reconversão habitacional numa zona consolidada
Uma oportunidade sólida num dos pontos mais estratégicos da cidade.

Imprimir a informação deste imóvel Imprimir a informação deste imóvel

O email ou o telefone têm de estar preenchidos.

Autorizo que os dados inseridos neste formulário apenas sejam utilizados para o fim a que o mesmo se destina.

Loading image