Desde 2006, o local para procurar casa em Portugal

«Voltar

Venda: Terreno Rústico

Terreno Rústico - Peniche, Peniche, Leiria - Imagem grande

Detalhes do imóvel

  • Distrito
    Leiria
  • Concelho
    Peniche
  • Localidade
    Peniche
  • Area
    1182 m²
  • Área do terreno
    1803 m²
  • Preço
    1.200.000 €
  • Certificado Energético
    -1
  • Código interno
    DSCAPMT39

Descrição

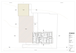
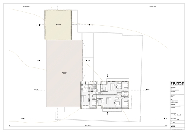
N/Refª DSCAPMT39 (MT) Se procura uma excelente oportunidade de investimento em Peniche, este lote para construção de 18 apartamentos pode ser a escolha perfeita! Localizado numa zona privilegiada, próximo da Universidade de Peniche (ESTM) e com vistas deslumbrantes para o mar, este projeto já aprovado com especialidades oferece um enorme potencial de valorização e rentabilidade. Vantagens e Potencial de Investimento: ? Alta rentabilidade: A forte procura por alojamento estudantil e turístico assegura um investimento seguro e atrativo. ? Localização estratégica: Peniche é uma das cidades costeiras mais procuradas em Portugal, com fácil acesso a Lisboa e outras regiões do Oeste. ? Valorização contínua: A crescente procura por habitação em zonas costeiras e turísticas reforça o potencial de valorização deste projeto. ? Flexibilidade de arrendamento: Unidades adaptadas a diversos perfis de inquilinos, desde estudantes e profissionais até famílias. Características do Lote e Tipologias: ? 4 T0: Apartamentos modernos e funcionais, ideais para arrendamento a estudantes ou profissionais. ? 6 T1: Unidades perfeitas para jovens casais ou indivíduos que procuram conforto e conveniência. ? 8 T2: Espaços amplos e bem distribuídos, ideais para famílias ou arrendamento de longa duração. ? Vista privilegiada para o mar: A maioria das unidades conta com vistas impressionantes para o oceano Atlântico, criando um ambiente tranquilo e inspirador. ? Projeto aprovado com especialidades: Todas as aprovações já em ordem, garantindo viabilidade imediata para construção. ? Áreas exteriores e jardim: Um espaço verde pensado para o conforto e bem-estar dos futuros moradores. Proximidade a Pontos de Interesse: ? Universidade de Peniche (ESTM): A poucos minutos a pé, tornando-o perfeito para alojamento estudantil. ? Farol do Cabo Carvoeiro: Um dos marcos mais emblemáticos da região, ideal para quem aprecia paisagens únicas. ? Largo de Nossa Senhora dos Remédios: Um local tradicional e muito procurado tanto por moradores como turistas. Ideal para: ? Investidores imobiliários à procura de um projeto com elevado potencial de valorização e retorno financeiro. ? Desenvolvedores e construtores que desejam iniciar um projeto sem burocracias, com todas as especialidades aprovadas. ? Famílias e estudantes que desejam viver perto da Universidade, de serviços e das belas praias de Peniche. Não perca esta oportunidade única! Entre em contacto para mais informações e garanta já o seu lugar num dos melhores investimentos imobiliários de Peniche! ?Somos intermediários de crédito vinculado autorizado pelo Banco de Portugal (Licença Nº 0006636), e podemos fazer a gestão do seu processo de financiamento, sem custos e sempre com as melhores soluções do mercado, com acompanhamento pré e pós -escritura. AMI 18057 A informação disponibilizada, não dispensa a sua confirmação nem pode ser considerada vinculativa!?

Imprimir a informação deste imóvel Imprimir a informação deste imóvel

O email ou o telefone têm de estar preenchidos.

Autorizo que os dados inseridos neste formulário apenas sejam utilizados para o fim a que o mesmo se destina.

Loading image