Desde 2006, o local para procurar casa em Portugal

«Voltar

Venda: Terreno Rústico

Terreno Rústico - Rio Mau, Vila do Conde, Porto - Imagem grande

Detalhes do imóvel

  • Distrito
    Porto
  • Concelho
    Vila do Conde
  • Localidade
    Rio Mau
  • Area
    0 m²
  • Área do terreno
    530 m²
  • Preço
    98.000 €
  • Certificado Energético
    N/D
  • Código interno
    DSEPSCS202

Descrição

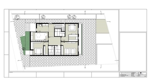
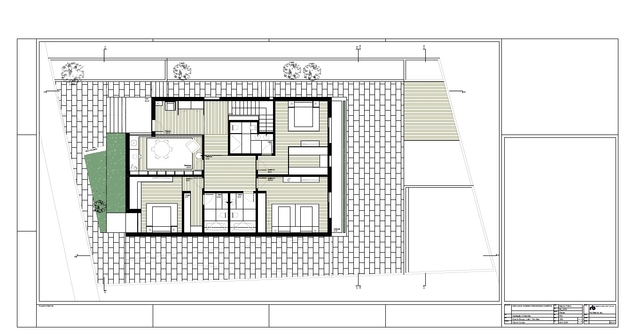
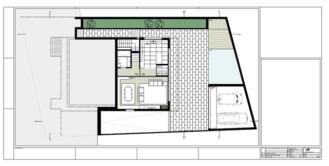
Lote de terreno com 530 m², localizado na Rua do Bouço, em Rio Mau ? Vila do Conde, numa zona tranquila e em expansão. O lote inclui projeto de arquitetura já elaborado, ideal para uma moradia unifamiliar contemporânea com 300 m² de área bruta de construção. ?? Nota: o projeto ainda não foi submetido à câmara municipal, permitindo ao comprador adaptá-lo às suas preferências antes da entrega. ?? Localização com excelentes acessos: ? 5 minutos da A7 ? 8 minutos da A28 ? 10 minutos do centro de Vila do Conde ? Destaques: ? Projeto incluído no valor ? Possibilidade de adaptação antes de submissão ? Excelente exposição solar ? Zona residencial com moradias recentes ? Oportunidade para construir a casa de sonho com maior liberdade ?? Consulte as imagens 3D do projeto e fotografias reais do terreno. Para mais informações ou marcação de visita, contacte-nos!

Imprimir a informação deste imóvel Imprimir a informação deste imóvel

O email ou o telefone têm de estar preenchidos.

Autorizo que os dados inseridos neste formulário apenas sejam utilizados para o fim a que o mesmo se destina.

Loading image