
Detalhes do imóvel
-
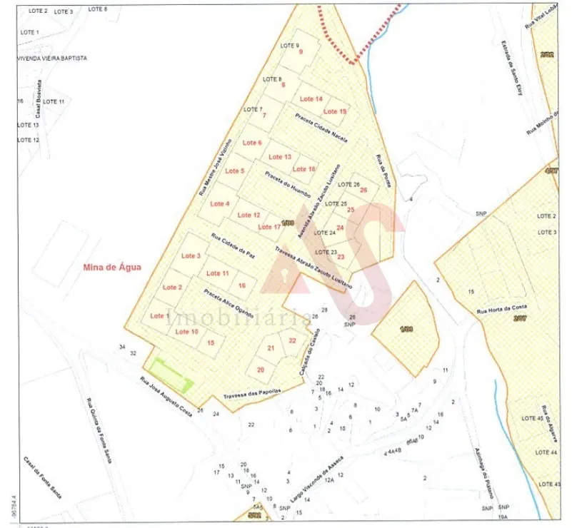
Distrito
Lisboa -
Concelho
Amadora -
Localidade
Mina de Àgua
-
Area
3934 m² -
Área do terreno
4000 m²
-
Preço
1.200.000 € -
Certificado Energético
-
Código interno
ASP25099
Descrição
Terreno para construção com lote aprovado para 19 fogos com 468 m² em Mina de Água, AmadoraTerreno com uma área bruta de construção com 3.934 m², e uma área bruta dependente de 1.164 m²com projeto aprovado para 19 fogos.Uma oportunidade de investimento num local com ótimo potencialefácilacesso.Para ter acesso a este fantástico projeto, basta entrar em contacto conosco e agendar a sua visita.Referência: ASP25099Por sermos intermediários de crédito devidamente autorizados pelo Banco de Portugal (Reg. 2736), fazemos a gestão de todo o seu processo de financiamento, sempre com as melhores soluções de mercado.Porquê escolher a AS Imobiliária?Com mais de 16 anos no ramo imobiliário e milhares de famílias felizes, dispomos de 9 agências estrategicamente localizadas, para o servir com proximidade, corresponder à suas expectativas e ajudá-lo a adquirir a sua casa de sonho. Compromisso, Competência e Confiança são os nossos valores que entregamos aos nossos Clientes na hora de comprar, arrendar ou vender o seu imóvel.A nossa prioridade é a sua Felicidade!Na AS Imobiliária somos apaixonados por vender casas!Especialistas imobiliários em Vizela ; Guimarães ; Felgueiras ; Lousada ; Santo Tirso ; Barcelos ; São João da Madeira ; Porto ; Braga ; Trofa; Lisboa ;