Desde 2006, o local para procurar casa em Portugal

«Voltar

Venda: Terreno Urbano T4

Terreno Urbano T4 - Lagos, Lagos, Faro (Algarve) - Imagem grande

Detalhes do imóvel

  • Distrito
    Faro (Algarve)
  • Concelho
    Lagos
  • Localidade
    Lagos
  • Area
    81 m²
  • Área do terreno
    34640 m²
  • Preço
    7.200.000 €
  • Certificado Energético
    ND
  • Código interno
    U477

Descrição

Características da Propriedade:

Quinta muito bem localizada na zona da Falfeira (orientação sul) numa área sossegada a norte da cidade de Lagos, aceso por caminho de terra batida mas a poucos metros da estrada nacional de alcatrão, somente a 5 minutos de carro do centro histórico de Lagos com todas as comodidades, da Marina de Lagos e de algumas das mais emblemáticas praias do Algarve.
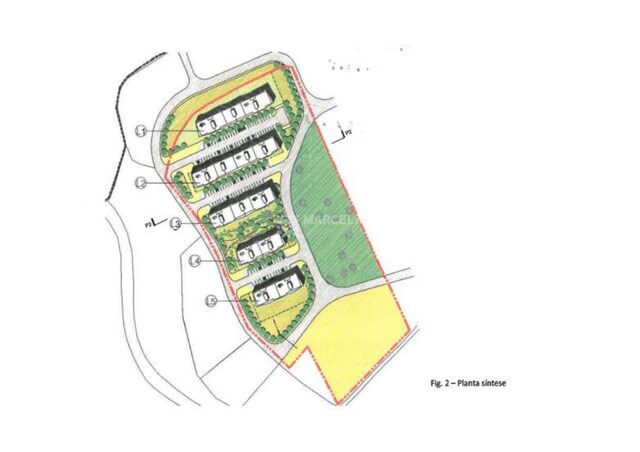
O terreno tem uma área total de 34.640 m2, esta propriedade está inserida no perímetro urbano da cidade de Lagos, tendo a possibilidade de vir a ser urbanizada. Poderá ser dividida em 5 lotes e construir aproximadamente 112 fogos com uma área total de construção de 16.929m2 e área de implantação de 8.884m2.

Atualmente o terreno possui uma área urbana de 235m2 com uma casa térrea tradicional construída antes de 1951 de 81, 50m2 com 6 divisões (sala/casa de jantar, cozinha, 4 quartos e 1 casa de banho) e várias culturas arvenses como amendoeiras e figueiras. A casa dispõe de ligação à rede elétrica.

Detalhes do Terreno:

Localização: Falfeira, Lagos
Área total do Terreno: 34.640m2
Capacidade de Construção: 16.929m2
Área de implantação: 8.884m2
Número de lotes: 5
Número de fogos: 112

Sobre Lagos:

Lagos está historicamente associada aos Descobrimentos Portugueses, sendo hoje um dos mais atrativos centros turísticos do Algarve, com praias e património cultural e religioso de exceção, assim como uma vida noturna de grande dinamismo. O centro histórico é praticamente todo pedonal, proporcionando uma vasta oferta de estabelecimentos comerciais ou de interesse cultural, restaurantes, bares ou cafés.

Hoje, o maior atrativo de Lagos reside na abundância e beleza das suas praias. Podemos escolher entre longas extensões de dunas de areia da Meia Praia e praias mais pequenas e abrigadas, como a Praia do Camilo ou a Praia Dona Ana.

O aeroporto internacional de Faro fica apenas a uma hora de distância através da autoestrada A22.

Investimento ideal para construção de unidades residências.

Estamos aqui para responder a todas as suas perguntas. Agende uma Visita e Não Perca Esta Oportunidade!

REF: U477

Imprimir a informação deste imóvel Imprimir a informação deste imóvel

O email ou o telefone têm de estar preenchidos.

Autorizo que os dados inseridos neste formulário apenas sejam utilizados para o fim a que o mesmo se destina.

Loading image