Desde 2006, o local para procurar casa em Portugal

«Voltar

Venda: Terreno Urbano T0

Terreno Urbano T0 - Leiria, Leiria, Leiria - Imagem grande

Detalhes do imóvel

  • Distrito
    Leiria
  • Concelho
    Leiria
  • Localidade
    Leiria
  • Area
    587 m²
  • Área do terreno
    587 m²
  • Preço
    72.800 €
  • Certificado Energético
    ND
  • Código interno
    LIZ-216614

Descrição

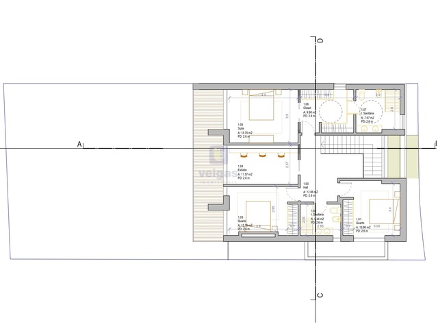
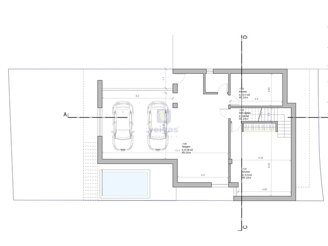
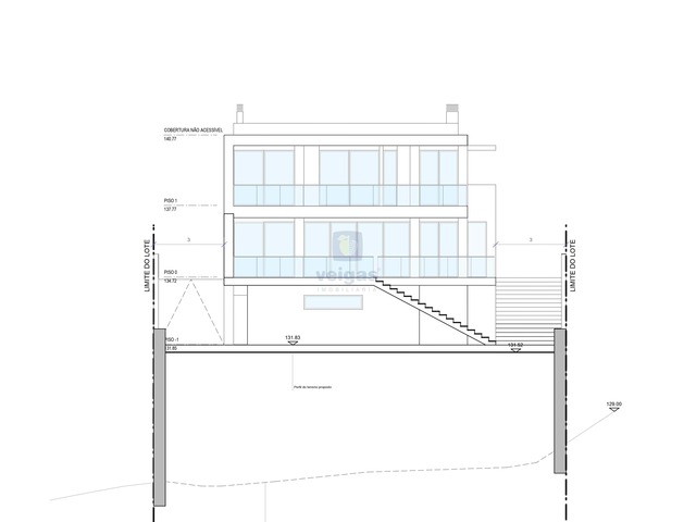
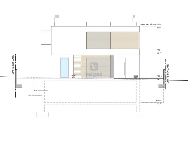
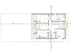
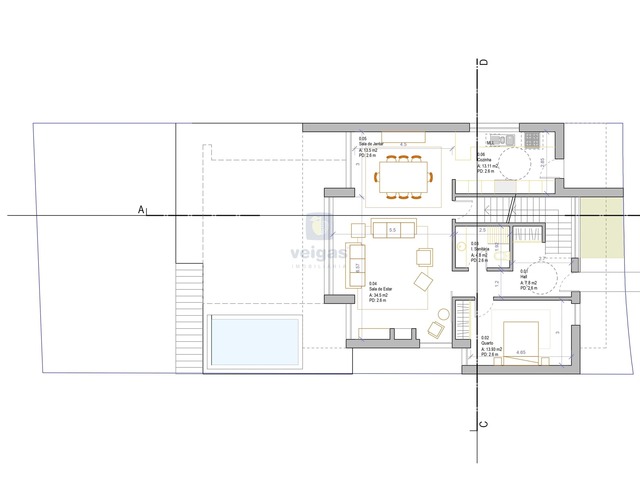
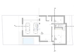
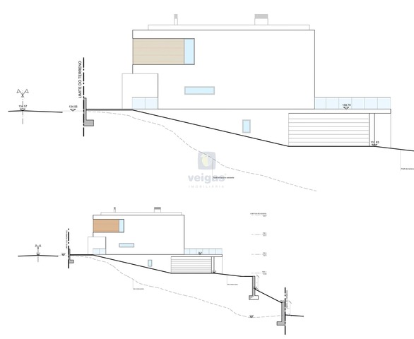
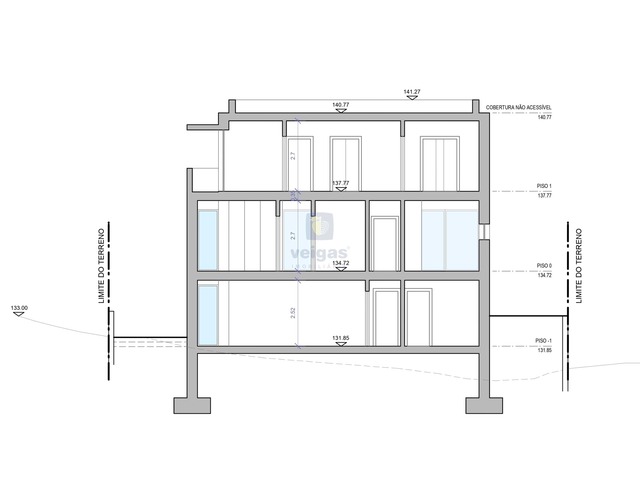
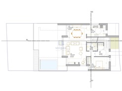
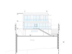
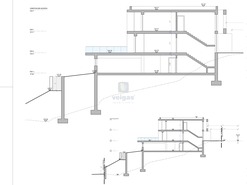
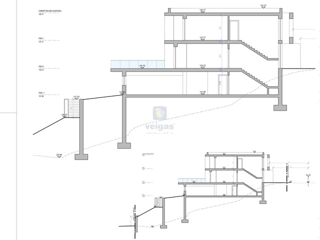
Lote de terreno Sito em Leiria ,com uma área de construção de 587m2 , com projeto aprovado para construção de uma moradia isolada de arquitetura moderna constituída por 3 pisos , Cave, R/Chão e primeiro andar

Situado em zona residencial de moradias comtemplando harmonia com a natureza. Zona calma mas perto do centro da cidade de Leiria .
Vista panorâmica desafogada para o campo.

De acordo com a Planta de Ordenamento e PDM de Leiria, o terreno encontra-se enquadrado em Espaço Habitacional de Grau II, com o seguinte regime de edificabilidade:

- Número máximo de pisos acima da cota de soleira é de até 2 pisos
- O índice máximo de ocupação do solo é de 60 % (até 352 m2 de área de implantação)
- O índice máximo de utilização do solo é de 0,6 (até 352 m2 de área de construção) aplicável à área de utilização do edifício, e de 0,85 aplicável à área complementar do edifício.

Lote de terreno Urbano com infraestruturas de água , eletricidade, internet, esgotos, gás natural. O terreno apresenta alguma inclinação, o que favorece a construção de moradia com cave.

Na zona envolvente encontram-se , Moradias, Prédios, Comercio, Serviços, Escolas , Centro de Saúde ,Transportes Urbano, a 3 Kms ao centro da cidade

Zona muito verde para quem procura sossego, zona em franco desenvolvimento.

Imprimir a informação deste imóvel Imprimir a informação deste imóvel

O email ou o telefone têm de estar preenchidos.

Autorizo que os dados inseridos neste formulário apenas sejam utilizados para o fim a que o mesmo se destina.

Loading image