Desde 2006, o local para procurar casa em Portugal

«Voltar

Venda: Terreno Urbano T0

Terreno Urbano T0 - Leiria, Leiria, Leiria - Imagem grande

Detalhes do imóvel

  • Distrito
    Leiria
  • Concelho
    Leiria
  • Localidade
    Leiria
  • Area
    1636 m²
  • Área do terreno
    1636 m²
  • Preço
    80.000 €
  • Certificado Energético
    ND
  • Código interno
    LIZ-216602

Descrição

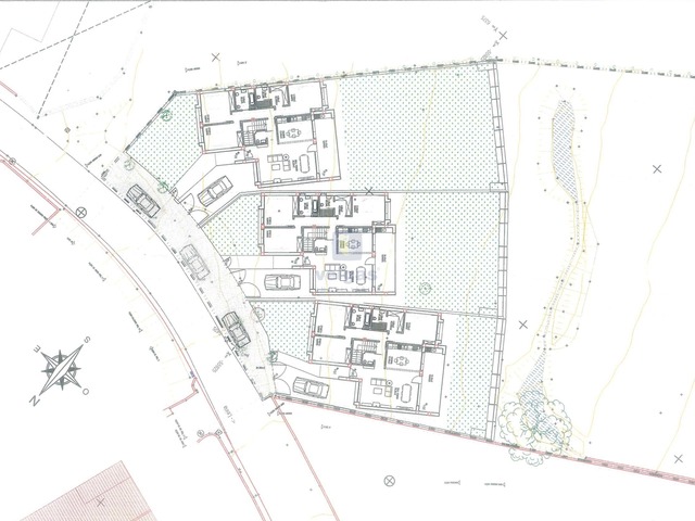
Terreno urbanizável com 1.636m2 em Pousos, Leiria, com projeto aprovado em 2022 para 3 moradias térreas com cave, de arquitetura contemporânea.

Excelente oportunidade para investimento (valor aproximado por moradia de 27.000), ou para habitação própria.

Localizado em Espaço Urbano de Baixa Densidade, com as seguintes condições de edificabilidade de acordo com o PDM:

- Número máximo de pisos acima da cota de soleira é de 2
- Índice máximo de impermeabilização do solo: 70 % (até 1.145m2)
- Índice máximo de utilização e de ocupação do solo: 50 % (até 818m2)
- Usos dominantes: Habitação; Comércio; Serviços
- Usos compatíveis: Estabelecimentos industriais dos tipos 2 e 3; Empreendimentos turísticos; Equipamentos de utilização coletiva

O projeto aprovado em 2022 consiste em 3 moradias térreas T3 com cave, com área de implantação de 153,20m2, e lotes de 459,60m2. Poderá ser reativado o projeto aprovado, ou formulação de novo projeto dentro das condições de edificabilidade atrás descritas.

Possibilidade de venda em conjunto com terreno contíguo com 2.544 m2, também em área urbanizável, totalizando 4.180 m2, permitindo a construção de até 8 moradias.

Disponíveis na via pública infraestrututuras de eletricidade, saneamento, água e tv por cabo.

O terreno tem uma frente larga com 30 metros, apresenta inclinação a sul, proporcionando uma excelente exposição solar, vista desafogada para os campos e rio Liz.

Este terreno situa-se numa zona residencial calma, rodeada pela natureza, a 4 km do centro da cidade de Leiria, onde tem disponível todo o tipo de serviços: comércio, hipermercados, centro comercial, escolas, restauração, hospital, clínicas, farmácias, bancos, serviços públicos, recintos desportivos, entre outros.

Imprimir a informação deste imóvel Imprimir a informação deste imóvel

O email ou o telefone têm de estar preenchidos.

Autorizo que os dados inseridos neste formulário apenas sejam utilizados para o fim a que o mesmo se destina.

Loading image