Desde 2006, o local para procurar casa em Portugal

«Voltar

Venda: Terreno Urbano T0

Terreno Urbano T0 - Quarteira, Loulé, Faro (Algarve) - Imagem grande

Detalhes do imóvel

  • Distrito
    Faro (Algarve)
  • Concelho
    Loulé
  • Localidade
    Quarteira
  • Area
    0 m²
  • Área do terreno
    1500 m²
  • Preço
    5.980.000 €
  • Certificado Energético
    ND
  • Código interno
    BRV-1121

Descrição

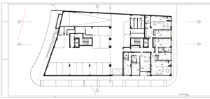
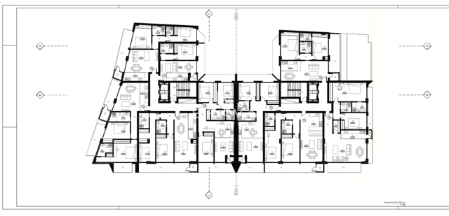
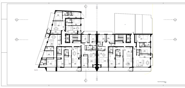
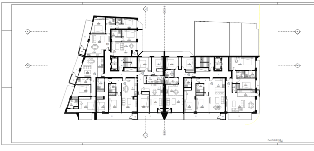
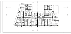
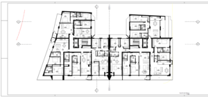
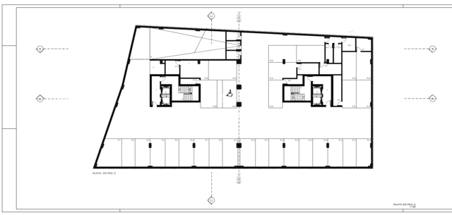
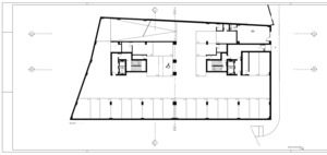
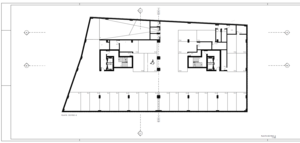
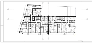
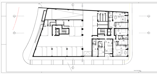
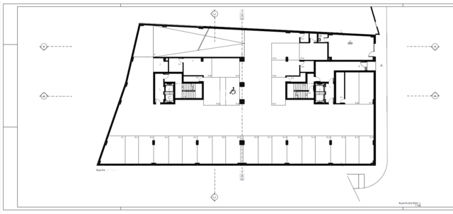
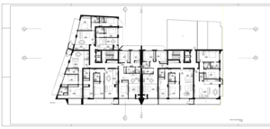
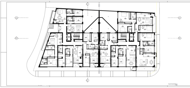
Terreno urbano com 1500 m² localizado no centro de Quarteira, com projeto aprovado para construção de um edifício de 6 pisos, totalizando 46 fogos.

O projeto prevê uma construção nova com acabamentos de qualidade, pensado para desenvolvimento habitacional em zona urbana consolidada e com forte procura residencial e turística.

Destaques da propriedade:
Terreno urbano com área total de 1500 m²
Projeto aprovado para edifício residencial
Construção prevista de 6 pisos
Capacidade total de 46 fogos
Projeto para construção nova
Acabamentos de qualidade previstos em projeto

Localização estratégica:
Localizado no centro de Quarteira
Inserido em zona urbana consolidada
Próximo de comércio, serviços e infraestruturas da cidade

Uma oportunidade para desenvolver um projeto residencial numa das zonas urbanas mais ativas do Algarve.

Imprimir a informação deste imóvel Imprimir a informação deste imóvel

O email ou o telefone têm de estar preenchidos.

Autorizo que os dados inseridos neste formulário apenas sejam utilizados para o fim a que o mesmo se destina.

Loading image