Desde 2006, o local para procurar casa em Portugal

«Voltar

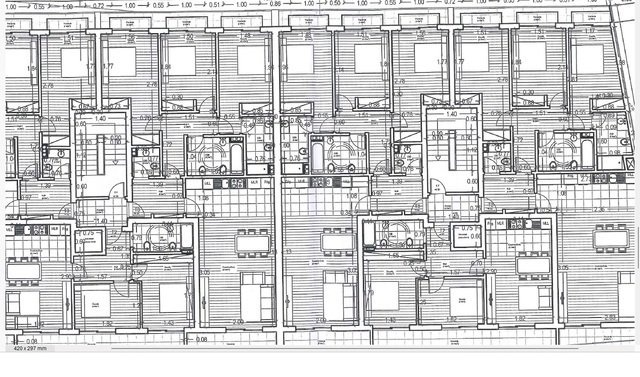
Venda: Terreno Urbano T0

Terreno Urbano T0 - Mirandela, Mirandela, Bragança - Imagem grande

Detalhes do imóvel

  • Distrito
    Bragança
  • Concelho
    Mirandela
  • Localidade
    Mirandela
  • Area
    1000 m²
  • Preço
    Sob Consulta
  • Certificado Energético
  • Código interno
    AGP-1457
  • Código externo
    1778

Descrição

Dois lotes com projecto aprovado e pronto a iniciar, para 8 xT3, 4 xT2 e 4xLojas. Podemos vender ou permutar por apartamentos

Imprimir a informação deste imóvel Imprimir a informação deste imóvel

O email ou o telefone têm de estar preenchidos.

Autorizo que os dados inseridos neste formulário apenas sejam utilizados para o fim a que o mesmo se destina.

Loading image