Desde 2006, o local para procurar casa em Portugal

«Voltar

Venda: Terreno Urbano

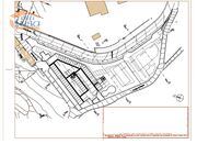
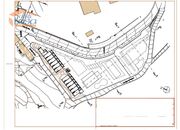
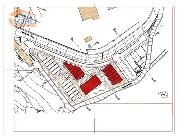
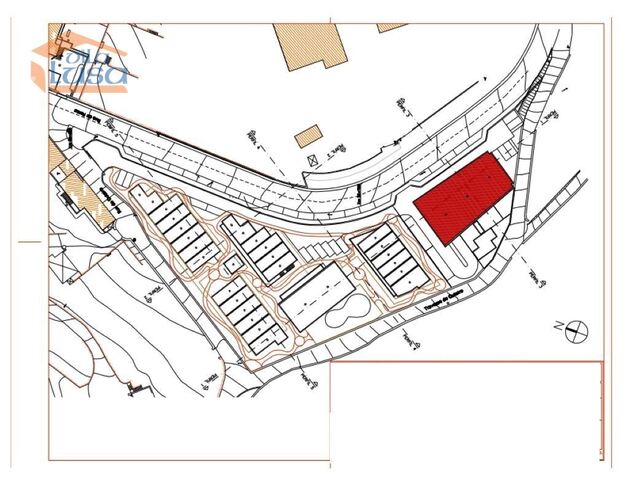
Terreno Urbano - Sobreira, Paredes, Porto - Imagem grande

Detalhes do imóvel

  • Distrito
    Porto
  • Concelho
    Paredes
  • Localidade
    Sobreira
  • Area
    0 m²
  • Preço
    270.000 €
  • Certificado Energético
    Isento
  • Código interno
    808241015

Descrição

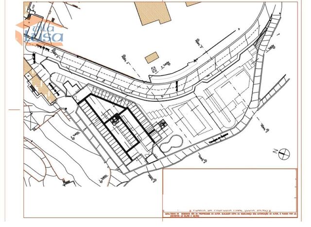
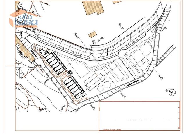
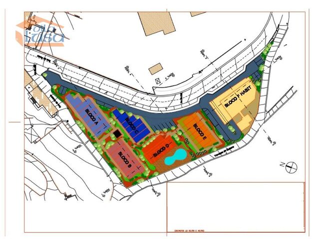
Terreno em Sobreira Paredes.

Terreno com 5883m2 em Sobreira Paredes com projeto para residências sénior.
Projeto para turismo incluindo residências sénior.

Área de implantação total: 1699.78 m2
Área Bruta de Construção quartos: 3628.81 m2
Área garagem - piso -1: 1457.50 m2

Este projecto pretende alargar a oferta de alojamento, para o segmento de utilizadores muito específicos seniores, com ou sem cuidados especiais, que procuram, qualidade de vida, tranquilidade e uma proximidade com a cidade do Porto.

Com 58 quartos com várias tipologias, desde T0 a T3 e estacionamento coberto para 49 lugares.

Está previsto para todos os quartos e apartamentos, quarto de banho privativo, internet, tv, telefone e ar condicionado.

Ligue para mais informações.

Se está a procurar ajuda com serviços de mediação de crédito, veio ao lugar certo! A nossa equipa especializada em mediação de crédito está aqui para oferecer suporte e orientação durante todo o processo.
Oferecemos uma variedade de serviços para atender às suas necessidades financeiras, incluindo:
1 - Análise e aconselhamento financeiro: os nossos especialistas irão analisar a sua situação financeira atual e oferecer conselhos personalizados para ajudá-lo a tomar decisões informadas.
2- Pesquisa de opções de crédito: faremos uma pesquisa abrangente das opções de crédito disponíveis no mercado, identificando as melhores soluções para você, conforme as suas necessidades e capacidade financeira.
3- Apoio na obtenção de crédito. Orientaremos durante todo o processo de obtenção de crédito, auxiliando na preparação de documentação, submissão de pedidos e acompanhamento junto às instituições financeiras.
4- Negociação de condições favoráveis. Utilizaremos a nossa experiência e conhecimento para negociar as melhores condições de crédito no seu nome, buscando taxas de juros competitivas e prazos adequados.
Acompanhamento contínuo: a nossa equipa estará disponível para responder a todas as suas dúvidas e fornecer suporte contínuo ao longo do seu relacionamento com a instituição financeira.
Independentemente das suas necessidades financeiras, estamos comprometidos em ajudá-lo a encontrar as melhores soluções de crédito. A nossa experiência e conhecimento do mercado nos permitem oferecer um serviço profissional e personalizado.
Entre em contacto connosco hoje mesmo para agendar uma consulta e descobrir como podemos ajudá-lo a obter o crédito de que precisa. Estamos aqui para orientá-lo e simplificar o processo, tornando a sua experiência mais fácil e tranquila.













var widgetId1;
var widgetId2;
var widgetId3;
var myCallBack = function() {
// Renders the HTML element with id 'example1' as a reCAPTCHA widget.
// The id of the reCAPTCHA widget is assigned to 'widgetId1'.
widgetId1 = grecaptcha.render('widgetId1', {
'sitekey' :'6Lfm-A8UAAAAADnmjHarcNZdc3pei1DoV9BvGb3f',
'theme' : 'light'
});

};












marcar visita



pedir informações







Nome:*



Email:*



Telefone:





Comentários:










Autorizo o tratamento comercial dos dados pela Vila Lusa e aceito os
Termos e Condições e a Política de privacidade.*

Imprimir a informação deste imóvel Imprimir a informação deste imóvel

O email ou o telefone têm de estar preenchidos.

Autorizo que os dados inseridos neste formulário apenas sejam utilizados para o fim a que o mesmo se destina.

Loading image