Since 2006, the place to look for a house in Portugal

«Return

Sell: Apartment T0

Apartamento T0 - São Victor, Braga, Braga - Imagem grande

Property details

  • District
    Braga
  • County
    Braga
  • Locality
    São Victor
  • Area
    34 m²
  • Price
    169.900 €
  • Energy Rating
    D
  • Property code
    DSBRGLJFF346

Description

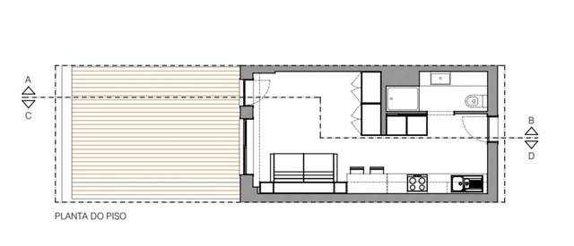
This fully renovated studio apartment (T0) is in the final stages of construction and is located at Rua Bernardo Sequeira, No. 231, in one of Braga?s most central and sought-after areas, close to the Court, Largo da Senhora-a-Branca, and just minutes from Avenida da Liberdade and the University of Minho. The apartment will be delivered at the end of December 2025, completely new and ready to move in, featuring fixed furniture, built-in wardrobes, and modern finishes ? exactly as shown in the 3D renderings. It includes a private 15 m² terrace, perfect for outdoor dining or relaxation, acting as a natural extension of the living space. Designed with attention to detail, this studio features a foldable bed integrated into the built-in wardrobe, maximizing space while providing a modern, functional, and comfortable living environment. 3D images are illustrative and accurately represent the final result. (Decoration is for illustration purposes only ? not included in the sale.) Ideal for personal use or as an investment, in a highly sought-after rental area of Braga. Features: Complete renovation with modern finishes Fully equipped kitchen Built-in wardrobes with integrated foldable bed 15 m² terrace Excellent space optimization Prime location: near the Court, Avenida da Liberdade, Bragashopping, and the University of Minho Shops, supermarkets, gyms, restaurants, and public transport at your doorstep Investment, location, and modern design ? the perfect property for your portfolio.

Print this property information Print this property information

The email or the phone field must be filled.

I authorize that the data entered in this form be used only for the purpose for which it is intended.

Loading image