Since 2006, the place to look for a house in Portugal

«Return

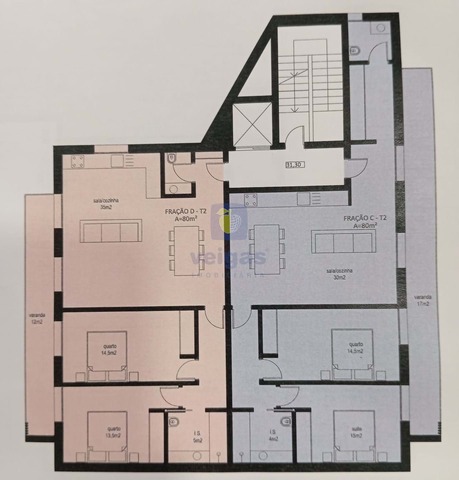
Sell: Apartment T2

Apartamento T2 - Santo Onofre, Caldas da Rainha, Leiria - Imagem grande

Property details

  • District
    Leiria
  • County
    Caldas da Rainha
  • Locality
    Santo Onofre
  • Area
    80 m²
  • Price
    300.000 €
  • Energy Rating
    ND
  • Property code
    CAL-217070

Description

2 bedroom apartment, with parking space, inserted in a building with elevator, in a quiet area of the city, next to schools and football and rugby fields, as well as the Municipal Swimming Pools, tennis and badminton court!

With a habitable area of 70 square meters and a total gross area of 85 square meters, this property offers all the comfort and modernity you are looking for. With two cozy bedrooms and two stylish bathrooms, it also has a parking space of about 15m2, this apartment is the perfect place to relax and enjoy life.

FEATURES:
- The outer thermal coating with hood;
- Solar panels;
- Air conditioning;
- Elevator;
- Video intercom;
- Electric blinds;
- PVC with double glazing;
- Floating floor to choose from;
- Ceramic flooring and tiles, there are two options;
- among others...

The property features a class A+ energy certification, ensuring efficiency and sustainability.
Don't miss this incredible opportunity to acquire this sublime property in Caldas da Rainha.

Print this property information Print this property information

The email or the phone field must be filled.

I authorize that the data entered in this form be used only for the purpose for which it is intended.

Loading image