Since 2006, the place to look for a house in Portugal

«Return

Sell: Rustic Land

Terreno Rústico - Lourinhã, Lourinhã, Lisboa - Imagem grande

Property details

  • District
    Lisboa
  • County
    Lourinhã
  • Locality
    Lourinhã
  • Area
    2408 m²
  • Plot area
    2408 m²
  • Price
    99.900 €
  • Energy Rating
    -1
  • Property code
    DSCAPCC28

Description

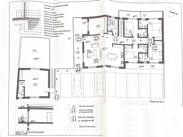
Ref DSCAPCC28 (CC) Plot of Urban Land of 2408.65 m² with approved housing project - Casal da Murta Urban land with 2408.65 m², with a construction area of 990.50 m2, located in Casal da Murta, a quiet area surrounded by nature. The land is flat, facilitating the construction and full use of the space. The property is about 15 minutes from Lourinhã and 20 minutes from Peniche, with easy access to services, shops and beaches. Ideal for those looking for a quiet place, but with good connectivity and potential for appreciation. The great differential of this property is that it already has an approved construction project, which significantly reduces costs and execution time, allowing the development of the land to start immediately. The approved project makes it possible to build a large house or other structures, offering flexibility for different needs and objectives. This urban land of 2408.65 m² is located in the town of Casal da Murta, a region of great natural beauty and tranquility, located close to Lourinhã and Peniche. The area is flat, which facilitates the construction and full use of the space, making it an excellent option for different types of projects, such as a single-family home or even a tourist project. The location of the land, although in a quiet zone, is well connected to urban areas and famous beaches. Lourinhã, with its shops, services, schools and transport, is about a 15-minute drive away and Peniche, famous for its beautiful beaches and leisure activities, is approximately 20 minutes away. Both cities offer excellent infrastructure, as well as easy access to important communication routes. The region is known for its tranquility and also for its proximity to the beaches of Peniche, Baleal and Areia Branca, which are ideal for outdoor activities, water sports and moments of rest. This makes the land an excellent choice for those who want to live in a calm environment, but at the same time have quick access to leisure and tourism options. In summary, this land in the town of Casal da Murta offers an excellent investment opportunity or for the construction of your dream home. Its proximity to Lourinhã and Peniche guarantees the convenience of access to services and leisure, without losing the tranquility and beauty that the region provides. "We are linked credit intermediaries authorized by the Bank of Portugal (License No. 0006636), and we can manage your financing process, free of charge and always with the best solutions on the market, with pre and post deed monitoring. AMI 18057 The information provided does not dispense with its confirmation nor can it be considered binding!"

Print this property information Print this property information

The email or the phone field must be filled.

I authorize that the data entered in this form be used only for the purpose for which it is intended.

Loading image