Since 2006, the place to look for a house in Portugal

«Return

Sell: Rustic Land

Terreno Rústico - Rio Mau, Vila do Conde, Porto - Imagem grande

Property details

  • District
    Porto
  • County
    Vila do Conde
  • Locality
    Rio Mau
  • Area
    0 m²
  • Plot area
    530 m²
  • Price
    98.000 €
  • Energy Rating
    N/D
  • Property code
    DSEPSCS202

Description

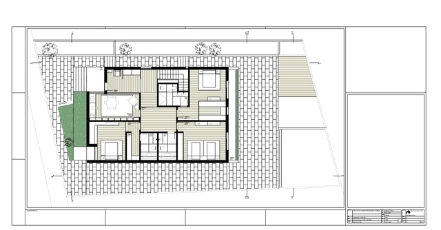
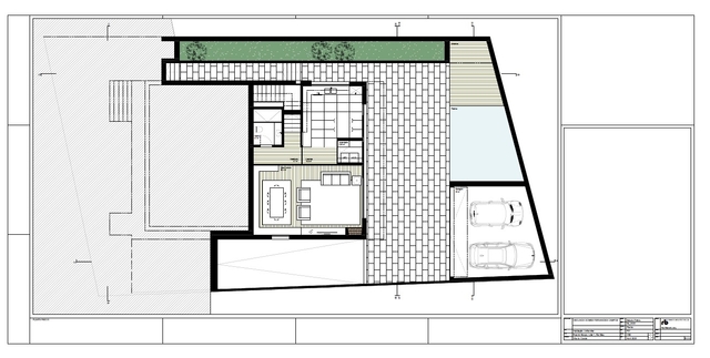
Plot of land with 530 m˛, located on Rua do Bouço, in Rio Mau ? Vila do Conde, in a quiet and expanding area. The plot includes an already prepared architectural project, ideal for a contemporary single-family house with 300 m˛ of gross construction area. ?? Note: the project has not yet been submitted to the city council, allowing the buyer to adapt it to their preferences before delivery. ?? Location with excellent access: ? 5 minutes from the A7 ? 8 minutes from the A28 ? 10 minutes from the center of Vila do Conde ? Highlights: ? Project included in the price ? Possibility of adaptation before submission ? Excellent sun exposure ? Residential area with recent villas ? Opportunity to build the dream home with greater freedom ?? See the 3D images of the project and real photographs of the land. For more information or to schedule a visit, contact us!

Print this property information Print this property information

The email or the phone field must be filled.

I authorize that the data entered in this form be used only for the purpose for which it is intended.

Loading image